Property Search
1014 Emerald Trace DriveJustin, TX 76247
Due to the health concerns created by Coronavirus we are offering personal 1-1 online video walkthough tours where possible.


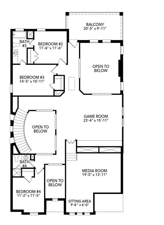
MLS# 21077433 - Built by Sandlin Homes - Ready Now! ~ This Monte Carlo floor plan offers functionality and luxury with four spacious bedrooms, 3.5 bathrooms, a third-car garage, and a host of premium upgrades. Enjoy the added study, perfect for a home office, a bay window in the primary suite, a wood hood in the kitchen, and a floating bar in the game room – ideal for entertaining. The added 12’ sliding door opens the living area to the patio, perfect for indoor-outdoor gatherings along with the upstairs balcony. Additional highlights include a grand staircase and formal dining area, media room, and ample guest accommodations. This beautifully designed home seamlessly blends dark and light finishes throughout the interior and exterior, creating a sophisticated and cohesive aesthetic. A curated mix of dark grey, black, and white tones flows effortlessly throughout the home, enhancing every space with a modern yet organic touch. The kitchen stuns with a mosaic backsplash featuring round detailing with a soft, natural feel, complemented perfectly by the fireplace tile that mimics the warmth of wood, bringing the outdoors in. Elevated tile work continues in every bathroom, showcasing attention to detail and style.
| a week ago | Listing updated with changes from the MLS® | |
| 3 weeks ago | Price changed to $699,900 | |
| 2 months ago | Listing first seen on site |
© 2020 North Texas Real Estate Information Systems. All rights reserved. Information is deemed reliable but is not guaranteed accurate by the MLS or NTREIS. The information being provided is for the consumer's personal, non-commercial use, and may not be reproduced, redistributed, or used for any purpose other than to identify prospective properties consumers may be interested in purchasing.
Last checked: 2025-11-29 02:32 PM CST


Did you know? You can invite friends and family to your search. They can join your search, rate and discuss listings with you.