Property Search
3611 Portland StreetIrving, TX 75062
Due to the health concerns created by Coronavirus we are offering personal 1-1 online video walkthough tours where possible.




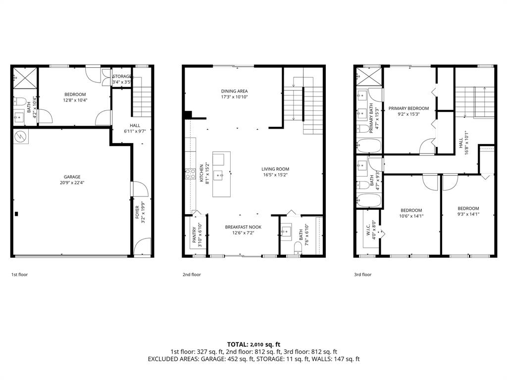
Beautiful brand-new townhome with NO HOA, offering a modern three-story design with 4 bedrooms and 3.5 bathrooms. The thoughtfully planned layout provides comfort, flexibility, and contemporary living throughout. The main level features a private bedroom with a full bathroom and direct access to a spacious two-car garage, ideal for guests or a home office. The second floor showcases a bright open-concept living area with a large living room, dining space, breakfast nook, and a modern kitchen complete with an island and pantry, along with a convenient half bath. The third floor includes the primary suite with a walk-in closet and full bathroom, plus two additional bedrooms and another full bathroom. Conveniently located near major highways and just minutes from Downtown Dallas, this townhome offers excellent accessibility. With no HOA, it is ideal for short-term or long-term rental opportunities or owner-occupied living. Generous room sizes, functional layout, and abundant natural light create a comfortable and stylish home.
| yesterday | Listing updated with changes from the MLS® | |
| yesterday | Listing first seen on site |
© 2020 North Texas Real Estate Information Systems. All rights reserved. Information is deemed reliable but is not guaranteed accurate by the MLS or NTREIS. The information being provided is for the consumer's personal, non-commercial use, and may not be reproduced, redistributed, or used for any purpose other than to identify prospective properties consumers may be interested in purchasing.
Last checked: 2026-03-07 06:51 PM CST


Did you know? You can invite friends and family to your search. They can join your search, rate and discuss listings with you.